Gallery

施工事例

  1. TOP
  2. 施工事例
  3. 大規模リフォームで、念願の夢をカタチに。(川越市)
戸田市

大規模リフォームで、念願の夢をカタチに。(川越市)

種別
戸建住宅
価格
800万円程度
工期
80日間
築年数
35年
構造
木造
竣工年月日
2014年
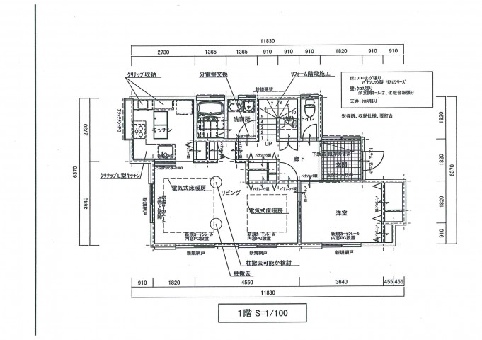
リフォーム箇所
キッチン、リビング、ダイニング、洋室、和室、玄関、窓・サッシ、収納
テーマ
全面改装、間取り変更

Before・After

ビフォー・アフター

Staff

担当スタッフの声

前回は、外装のメンテナンス工事でお世話になりましたが、

今回は、奥様の念願だった間取り変更を伴った大規模リフォームを実施させて頂きました。

それぞれ独立していた3部屋をLDKとして1つの空間に。

その大空間で存在感を発揮しているフローリング材が素敵です。
(パナソニック、ジョイハードフローリングのオーク柄を採用)

天井+床下にも新しい断熱材を入れ、さらに床暖房を設置。
極め付けは、内窓(ペアガラス仕様)です。
断熱性能はもちろん、防音性能の向上にもなりました。


閉鎖的だったキッチンはL型対面式で解放的な空間になりました。
家電収納も含め、クリナップのラクエラを採用しました。

後日談ですが、完工後にお孫様が誕生し、ご家族で集まった際に、思い切ってリフォームして良かったと再認識して頂いたとの事。
S様、嬉しいコメントありがとうございました。



★・・・・・・★・・・・・・★・・・・・・★・・・・・・★・・・・・・★
株式会社 嶋澤啓工務店

[本社]
〒336-0022 埼玉県 さいたま市 南区 白幡 4-14-23

[川口ショールーム]
〒332-0035 埼玉県 川口市 西青木 3-4-8

[越谷ショールーム]
〒343-0816 埼玉県 越谷市 弥生町 2-16

0120-4038-15にお掛け下さい!!

システムバス、システムキッチン、増改築、トイレ、外壁屋根塗装、水廻り工事、小工事、リフォームなど

お任せ下さい。

さいたま市全域(南区、桜区、中央区、浦和区、大宮区、西区、北区、見沼区、緑区、岩槻区) 川口市

 越谷市 草加市 春日部市 蕨市 戸田市 吉川市 松伏町 埼玉県
★・・・・・・★・・・・・・★・・・・・・★・・・・・・★・・・・・・★



リフォームをご検討されている方は
お気軽にお問い合わせください。

お電話でのお問い合わせ

Tel. 0120-4038-15

受付時間 / 午前9時~12時午後13時~18時

無料見積り
来店予約
電話でお問合せ
閉じる

スマホの方は電話番号をタップで発信できます。

受付時間 午前9:00~12:00 午後13:00~18:00 定休日・祝日
浦和ショールーム

048-710-7081

受付時間 午前の部10:00~12:00午後の部13:00~17:00 定休日 月・祝(日は営業不在)
さいたま新都心ショールーム

048-762-8101

受付時間 午前の部10:00~12:00午後の部13:00~17:00 定休日 月・祝(日は営業不在)
川口ショールーム

048-280-6805

受付時間 午前の部10:00~12:00午後の部13:00~17:00 定休日 月・祝(日は営業不在)
オンラインリフォーム相談サービス