Gallery

施工事例

  1. TOP
  2. 施工事例
  3. 奥様の夢、ダンスホールをご自宅で実現!改修工事(越谷市)
越谷市

奥様の夢、ダンスホールをご自宅で実現!改修工事(越谷市)

種別
戸建住宅
価格
550万円程度
工期
約60日間
構造
木造
竣工年月日
2018年春頃
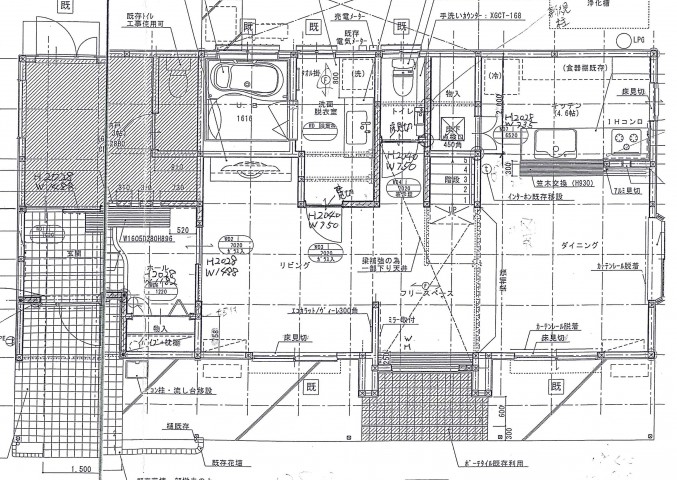
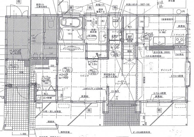
リフォーム箇所
トイレ、洗面室、リビング、ダイニング、洋室、収納

Before・After

ビフォー・アフター

Owner’s Voice

お客様の声

今回は、リフォームして頂きありがとうございました。
お世話様になりました。
最初の打合せから最後まで、一貫して誠意を感じることが出来ました。
言動も常に信頼のおけるものでした。
いつも質問には、素人の当方が解る様目に見える形での説明もしてくれ、
こちらが納得した形でのみ工事を進める方法で進めて下さいました。
おかげ様で考えていた以上に、大変住みやすく夢の持てる住まいとなりました。
以前感じていたストレスも、全くなくなり
感謝の心を持ちながら日々を送らせて頂いております。
嶋澤さんは、こちらの身になって提案なり意見なりをして下しました。
経費についても、正直にお話して下さるので、
不安になることは一度もありませんでした。
又、教育が行き届いているんだなあとも感じました。
これからも嶋澤カラーでのサービス向上に期待します。

Staff

担当スタッフの声

★・・・・・・★・・・・・・★・・・・・・★・・・・・・★・・・・・・★
株式会社 嶋澤啓工務店

[本社]
〒336-0022 埼玉県 さいたま市 南区 白幡 4-14-23

[川口ショールーム]
〒332-0035 埼玉県 川口市 西青木 3-4-8

[越谷ショールーム]
〒343-0816 埼玉県 越谷市 弥生町 2-16

0120-4038-15にお掛け下さい!!

システムバス、システムキッチン、増改築、トイレ、外壁屋根塗装、水廻り工事、小工事、リフォームなど

お任せ下さい。

さいたま市全域(南区、桜区、中央区、浦和区、大宮区、西区、北区、見沼区、緑区、岩槻区) 川口市

 越谷市 草加市 春日部市 蕨市 戸田市 吉川市 松伏町 埼玉県
★・・・・・・★・・・・・・★・・・・・・★・・・・・・★・・・・・・★



リフォームをご検討されている方は
お気軽にお問い合わせください。

お電話でのお問い合わせ

Tel. 0120-4038-15

受付時間 / 午前9時~12時午後13時~18時

無料見積り
来店予約
電話でお問合せ
閉じる

スマホの方は電話番号をタップで発信できます。

受付時間 午前9:00~12:00 午後13:00~18:00 定休日・祝日
浦和ショールーム

048-710-7081

受付時間 午前の部10:00~12:00午後の部13:00~17:00 定休日 月・祝(日は営業不在)
さいたま新都心ショールーム

048-762-8101

受付時間 午前の部10:00~12:00午後の部13:00~17:00 定休日 月・祝(日は営業不在)
川口ショールーム

048-280-6805

受付時間 午前の部10:00~12:00午後の部13:00~17:00 定休日 月・祝(日は営業不在)
オンラインリフォーム相談サービス