Gallery

施工事例

  1. TOP
  2. 施工事例
  3. L型キッチンからI型キッチンへ交換!!(吉川市)
吉川市

L型キッチンからI型キッチンへ交換!!(吉川市)

種別
戸建住宅
価格
75万円程度
工期
5日間
構造
木造
竣工年月日
2018年 春ごろ
リフォーム箇所
キッチン

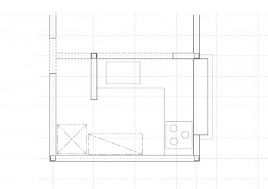
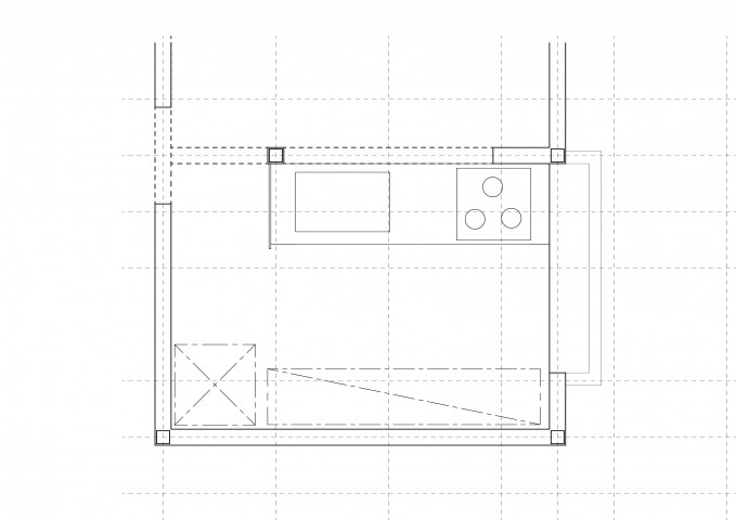
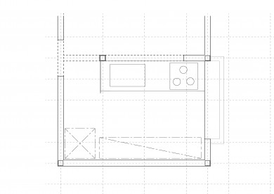
Before・After

ビフォー・アフター

Staff

担当スタッフの声

~工事内容~



L型キッチンからI型キッチンへ交換。 キッチンの内装も同時期に貼替えました。



~商品内容~



キッチン LIXIL シエラ 開き扉タイプのものですが 以前と比べ取っ手部分がすっきりしました。 お色味もかわいく素敵です。 



また何かお困り事等ございます時にはお気軽にご連絡を頂ければと思います。



★・・・・・・★・・・・・・★・・・・・・★・・・・・・★・・・・・・★



株式会社 嶋澤啓工務店



[本社] 〒336-0022 埼玉県 さいたま市 南区 白幡 4-14-23



[川口ショールーム] 〒332-0035 埼玉県 川口市 西青木 3-4-8



[越谷ショールーム] 〒343-0816 埼玉県 越谷市 弥生町 2-16



0120-4038-15にお掛け下さい!!



システムバス、システムキッチン、増改築、トイレ、外壁屋根塗装、水廻り工事、小工事、リフォームなど お任せ下さい。 さいたま市全域(南区、桜区、中央区、浦和区、大宮区、西区、北区、見沼区、緑区、岩槻区) 川口市  越谷市 草加市 春日部市 蕨市 戸田市 吉川市 松伏町 埼玉県



★・・・・・・★・・・・・・★・・・・・・★・・・・・・★・・・・・・★


リフォームをご検討されている方は
お気軽にお問い合わせください。

お電話でのお問い合わせ

Tel. 0120-4038-15

受付時間 / 午前9時~12時午後13時~18時

無料見積り
来店予約
電話でお問合せ
閉じる

スマホの方は電話番号をタップで発信できます。

受付時間 午前9:00~12:00 午後13:00~18:00 定休日・祝日
浦和ショールーム

048-710-7081

受付時間 午前の部10:00~12:00午後の部13:00~17:00 定休日 月・祝(日は営業不在)
さいたま新都心ショールーム

048-762-8101

受付時間 午前の部10:00~12:00午後の部13:00~17:00 定休日 月・祝(日は営業不在)
川口ショールーム

048-280-6805

受付時間 午前の部10:00~12:00午後の部13:00~17:00 定休日 月・祝(日は営業不在)
オンラインリフォーム相談サービス