Gallery

施工事例

  1. TOP
  2. 施工事例
  3. 【フルリフォーム】内外装ともガラッと変身(吉川市)
越谷市

【フルリフォーム】内外装ともガラッと変身(吉川市)

種別
戸建住宅
価格
610万円程度
工期
60日間
築年数
20年
構造
木造
竣工年月日
2017年冬頃
リフォーム箇所
キッチン、浴室・バス、トイレ、洗面室、外壁、屋根、リビング、ダイニング、洋室、和室、玄関、収納
テーマ
全面改装、間取り変更

Before・After

ビフォー・アフター

Owner’s Voice

お客様の声

今回のリフォーム工事、大変ありがとうございました。
また、工事の対応、仕上りにも満足しております。
無理な工事も担当者様、施工者様のプランニングで(特にユニットバス)使い勝手良くすごしております。

今後も家の相談は御社にお願いしたいと思いますので、よろしくお願いします。

Staff

担当スタッフの声

大変光栄なアンケートありがとうございました。



工事中も職人ともども良くしていただきありがとうございました。



内装外装ともに大きく変わりましたが、 外壁の変身ぶりには私たちも感動いたしました!!



間取りのプランニングからたくさんの色決めまでたくさんお打合せさせていただき、 ご満足のリフォームになりましたこと、私たちも大変うれしく思います。



本当にありがとうございました。



施工内容



・浴室・洗面室改修  



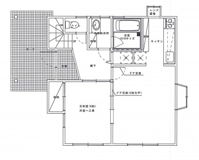
既存の浴室が1216サイズで少々狭く、 洗面室もキッチンへの動線のために、ものの置けないスペースが発生していました。  



お風呂を広くしたいとのご希望でしたが、2×4工法特有の耐力壁の関係上、現状の間取りのままだと1317サイズが限界でした。  



そこで大胆にも浴室と洗面室を入れ替え、洗面室からキッチンへの動線をつぶして  浴室をなるべく広くとれるようご提案させていただきました。  



その結果、浴室は1618サイズまで大きくなりました!!  2人で入ってもひろびろです!!  



ユニットバス TOTO サザナ Sタイプ 1618サイズ 定価¥1,197,500 58%OFF  



洗面化粧台 LIXIL ピアラ 定価¥319,400 45%OFF



 



・洗濯室改修  



洗面室からキッチンの動線をつぶし、洗濯機と冷蔵庫のスペースをつくりました。  洗濯機の上には棚を設け、収納面もばっちりです。  



 



・キッチン改修  



浴室・洗面室を広くしたために、少々犠牲になってしまったキッチン。  



キッチンの後ろに、家電を置くスペースが無くなってしまいました。



そこで、使っていなかった勝手口をつぶし、 電子レンジ等の家電収納スペースだけほんの少し増築しました。



外壁塗装のタイミングで増築しましたので、 外から見てもわからない仕上がりになりました。    



キッチン クリナップ クリンレディ W2550 定価¥1,402,500  



洗エールレンジフードをご採用いただきました。 業界初のボタン1つでファルターとファンを自動洗浄してくれるレンジフードです。



お掃除なしでレンジフードのキレイが保てる画期的な商品です!!



 



・和室改修  



畳をフローリングに、押入れをクローゼットに、2枚の引違いの襖を3枚の引戸に。 リビングの床の色に近いフローリングを選び、一体感を持たせました。 3枚の引戸にすることで、広く1部屋でも使えるようになりました。  



朝日ウッドテック ライブナチュラル サイレックスα ¥11,200/ケース



・外装改修  



屋根・外壁の塗装、コーキングの打ち替えをさせていただきました。



屋根は遮熱の塗料、外壁はシリコン塗料を使用しました。 



旦那様の理想の外装イメージがしっかり固まっておりましたので、そのイメージをそのまま形にしました。  



かなり再現度が高いと社内で評判です!!



特注色のため5万円ほどの差額が発生しますが、 こだわりのお客様にはオススメです!!



★・・・・・・★・・・・・・★・・・・・・★・・・・・・★・・・・・・★



株式会社 嶋澤啓工務店



[本社] 〒336-0022 埼玉県 さいたま市 南区 白幡 4-14-23



[川口ショールーム] 〒332-0035 埼玉県 川口市 西青木 3-4-8



[越谷ショールーム] 〒343-0816 埼玉県 越谷市 弥生町 2-16



0120-4038-15にお掛け下さい!!



システムバス、システムキッチン、増改築、トイレ、外壁屋根塗装、水廻り工事、小工事、リフォームなど お任せ下さい。 さいたま市全域(南区、桜区、中央区、浦和区、大宮区、西区、北区、見沼区、緑区、岩槻区) 川口市  越谷市 草加市 春日部市 蕨市 戸田市 吉川市 松伏町 埼玉県



★・・・・・・★・・・・・・★・・・・・・★・・・・・・★・・・・・・★


リフォームをご検討されている方は
お気軽にお問い合わせください。

お電話でのお問い合わせ

Tel. 0120-4038-15

受付時間 / 午前9時~12時午後13時~18時

無料見積り
来店予約
電話でお問合せ
閉じる

スマホの方は電話番号をタップで発信できます。

受付時間 午前9:00~12:00 午後13:00~18:00 定休日・祝日
浦和ショールーム

048-710-7081

受付時間 午前の部10:00~12:00午後の部13:00~17:00 定休日 月・祝(日は営業不在)
さいたま新都心ショールーム

048-762-8101

受付時間 午前の部10:00~12:00午後の部13:00~17:00 定休日 月・祝(日は営業不在)
川口ショールーム

048-280-6805

受付時間 午前の部10:00~12:00午後の部13:00~17:00 定休日 月・祝(日は営業不在)
オンラインリフォーム相談サービス