Gallery

施工事例

  1. TOP
  2. 施工事例
  3. 洗面拡大!!水回りリフォーム(松伏町)
戸田市

洗面拡大!!水回りリフォーム(松伏町)

種別
戸建住宅
価格
250万円程度
工期
16日間
築年数
30年
構造
木造
竣工年月日
2017年冬頃
リフォーム箇所
浴室・バス、トイレ、洗面室

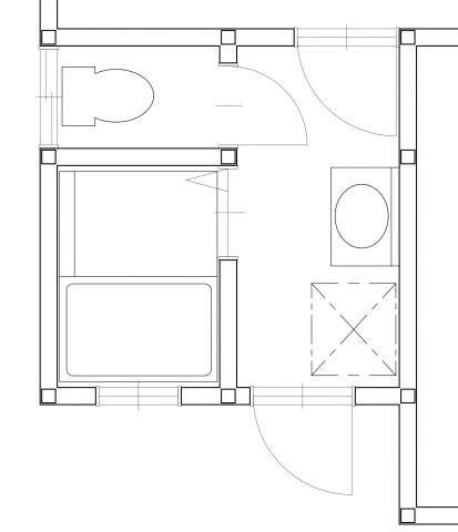
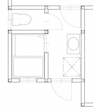
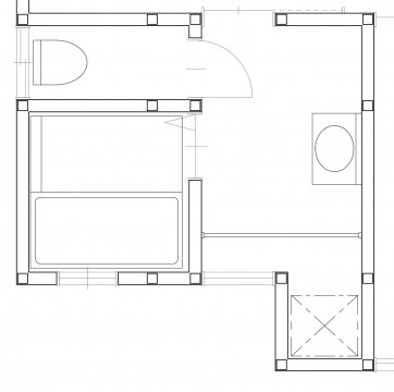
Before・After

ビフォー・アフター

Staff

担当スタッフの声

施工内容
・浴室改修
 間取り変更でお風呂は1216(0.75坪)サイズから1616(1坪サイズ)にサイズUP!!

 ユニットバス パナソニック オフローラ 定価¥986,000 58%OFF
 美泡湯セット 定価計¥180,000 35%OFF     
         
 美泡湯は酸素をたっぷり含んだミクロの泡で、お湯を白くやわらかに。
 入浴剤を使わなくても、身体を温め、肌表面をやさしくキレイにします。
 オフローラはお掃除が楽な人工大理石浴槽が標準装備です。
 

・洗面室改修
 間取り変更で広くなった洗面室。
 洗濯機スペースを移動し、洗面化粧台まわりがぐっと広くなりました。
 ランドリーパイプや大風量の換気扇を取付け、洗濯物も干せる仕様にしました。
 また、将来手すりを取り付ける可能性がある箇所には事前に下地を入れました。

 洗面化粧台 LIXIL オフト 定価¥115,500 70%OFF

 洗面化粧台はあまりこだわらずお値段を抑えたいとのことでしたので、
 弊社チラシ掲載の最安品をご採用いただきました。

 洗濯水栓 TOTO TW11R 定価¥7,100
 洗濯パン TOTO PWP640NRW 定価¥9,900
 横引きトラップ TOTO PJ2008NW 定価¥5,100
 洗面換気扇 天井扇 三菱 VD-20ZAC10 定価¥47,500

 内装工事 天井・壁:量産クロス 30㎡程度 約¥27,000
      床:クッションフロア 6㎡程度 約¥15,000


・トイレ改修
 トイレも広くなりましたが、タンクレストイレにしたのでさらに広く。
 換気扇も取付け、手摺(アームレスト)も取付け
 より安全で清潔なトイレとなりました。

 トイレ パナソニック 新型アラウーノ 定価¥310,000 28%OFF
 アームレスト 定価¥40,000 28%OFF
 棚付2連ペーパーホルダーロングタイプ 定価¥24,200 28%OFF

 パナソニックのアラウーノは、
 食器洗い用の洗剤を入れておくと、洗浄のたびに自動で泡がお掃除してくれます。
 日常のお掃除がすごく楽になります。

 トイレ換気扇 パイプファン 三菱 V-08PX7 定価8,800 35%OFF
  
  
・給湯器交換
 ガス給湯器 リンナイ20号 RUFA2005SAW 定価¥264,400 72%OFF
 マルチリモコンセット 定価¥33,000 45%OFF


★・・・・・・★・・・・・・★・・・・・・★・・・・・・★・・・・・・★
株式会社 嶋澤啓工務店

[本社]
〒336-0022 埼玉県 さいたま市 南区 白幡 4-14-23

[川口ショールーム]
〒332-0035 埼玉県 川口市 西青木 3-4-8

[越谷ショールーム]
〒343-0816 埼玉県 越谷市 弥生町 2-16

0120-4038-15にお掛け下さい!!

システムバス、システムキッチン、増改築、トイレ、外壁屋根塗装、水廻り工事、小工事、リフォームなど

お任せ下さい。

さいたま市全域(南区、桜区、中央区、浦和区、大宮区、西区、北区、見沼区、緑区、岩槻区) 川口市

 越谷市 草加市 春日部市 蕨市 戸田市 吉川市 松伏町 埼玉県
★・・・・・・★・・・・・・★・・・・・・★・・・・・・★・・・・・・★

リフォームをご検討されている方は
お気軽にお問い合わせください。

お電話でのお問い合わせ

Tel. 0120-4038-15

受付時間 / 午前9時~12時午後13時~18時

無料見積り
来店予約
電話でお問合せ
閉じる

スマホの方は電話番号をタップで発信できます。

受付時間 午前9:00~12:00 午後13:00~18:00 定休日・祝日
浦和ショールーム

048-710-7081

受付時間 午前の部10:00~12:00午後の部13:00~17:00 定休日 月・祝(日は営業不在)
さいたま新都心ショールーム

048-762-8101

受付時間 午前の部10:00~12:00午後の部13:00~17:00 定休日 月・祝(日は営業不在)
川口ショールーム

048-280-6805

受付時間 午前の部10:00~12:00午後の部13:00~17:00 定休日 月・祝(日は営業不在)
オンラインリフォーム相談サービス